黄飞鸿医武国术文化研究院升级改造

省级非物质文化遗产洪拳(黄飞鸿派)保护单位
本案背景
黄飞鸿医武国术文化研究院位于旧工厂片区内,目前所在区域已改造成创意园。政府对传统文化事业的重视,保留了传统武术教学基地用地。基地由于历史原因建筑结构曾被严重破坏过,另一方面为满足更高的武术教学研究及文化推广,亟需对拳馆进行升级改造。机缘巧合下良风团队有幸参与到洪拳馆的升级改造设计项目中来。经过与负责人何师傅多次沟通了解及基地进行实地勘测,查找资料文献,最终确定了拳馆空间设计方案。
建筑结构
框架结构+木结构+钢结构
改造目标
1. 丰富空间功能,同时兼顾空间的灵活调动性。
2. 按武术考核场地的空间尺度要求重新规划武术厅面积。
3. 外形态突出岭南地域特色同时和谐与创意园区的整体视觉色彩。
4. 风格在传统中平衡时代的视觉吸引力,侧面地吸引更多年轻群体的关注和加入。
改造面积
建筑占地面积约300 ㎡,总建筑面积约800 ㎡。
空间功能
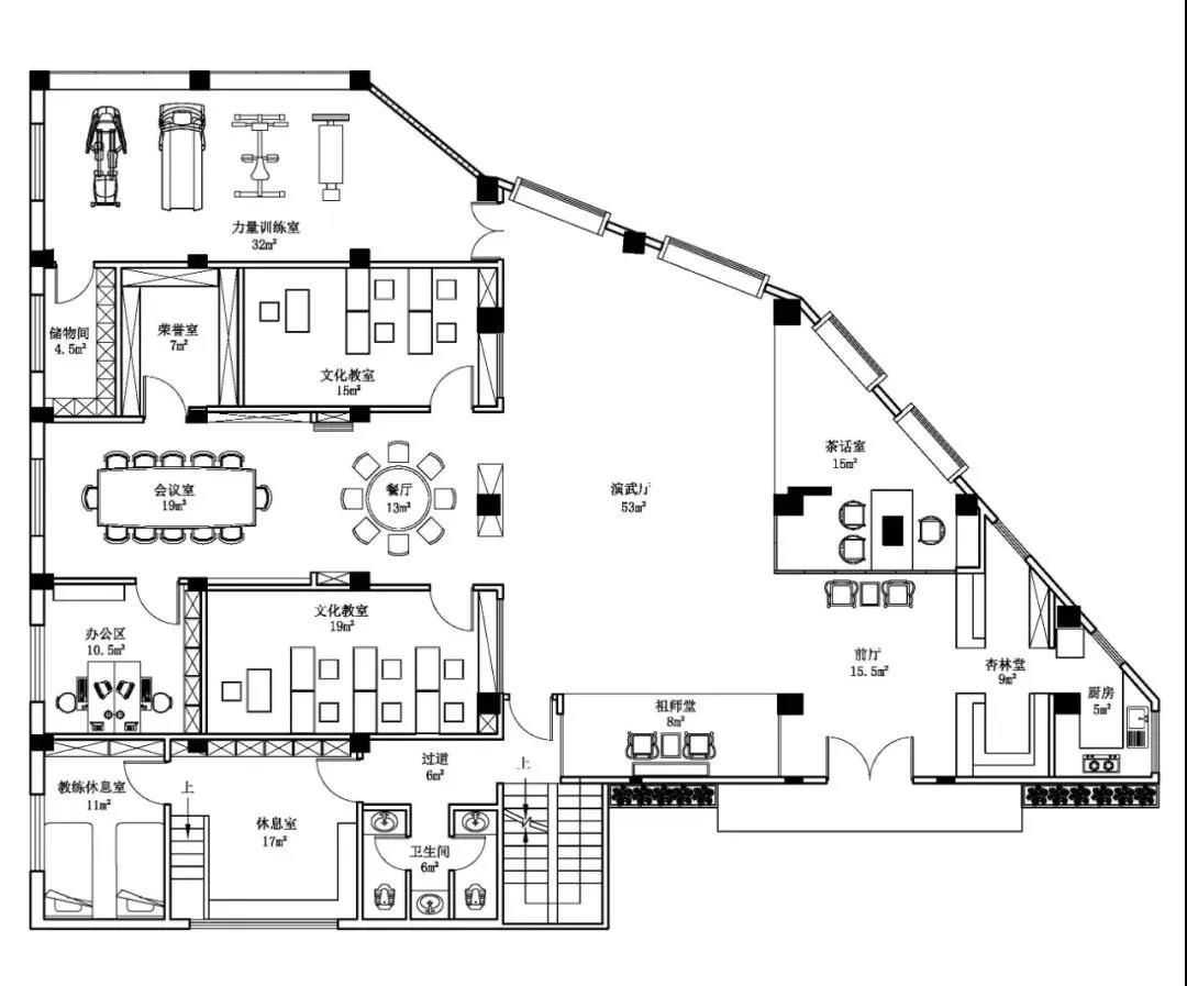
接待厅、杏林堂、茶室、演武厅、祖师爷牌位、文化课室、荣誉室、会议室、办公室、力量训练室、休息室、武术厅、公共教育厅、图书室、百草园等。


空间分解轴测图

外立面为了体现洪拳馆的地域特色,借鉴西关大屋的骑楼建筑概念做了一个门廊,简约的线条拉出层次,通过粗犷的材料和现代空间营造,用现代的设计语言重新表现传统的建筑符号。不同质感的白色远处统一园区的色彩,近处又能增加装饰层次,突出独特的历史韵味。

西关民国时期建筑群

建筑改造效果图

建筑改造效果图

天台花园

本案地块位于工业园区深处,坐落河边,隔河相望是大片湿地景观。原建筑体由旧厂房、旧仓库临时改造而成,建筑结构曾被坏,被拆除的部分钢筋暴露外墙裸露。

破旧的厂房建筑体加上绝佳的自然景观,团队希望将旧建筑进行适应性再利用,为武术馆之赋予新的形象。

建筑北侧立面

前厅
在材料选择上:复古的青砖、水磨石、花纹砖,趟门、玻璃吊灯。同时,墙面也做了墙裙处理。整体色调上以白色墙面、灰色地面、木饰墙裙、色彩块面上以橄榄绿为调和。

杏林堂
在传播国术的同时也普及中医基础知识

祖师爷堂
因洪拳舞狮与祠堂的关系,不少拳馆也设在祠堂中。而尊师重道,追忆先师更是传统武术所崇尚的。

演武厅角度一
大面积的浅绿色水磨石材料、绿色的铁制风扇营造出独有的时代氛围,圆拱形的门洞和窗户有着复古又时尚的轻灵感,宽敞的窗户将户外的大面积绿色引入其中。

演武厅角度二

会客茶室
演武厅一角地台上开辟会客室功用

荣誉室

会议室角度一

会议室角度二

力量训练室角度一

力量训练室角度二

文化课室角度一

文化课室角度二


休息室轴测图

休息室立面图

武术厅角度一

武术厅角度二
二楼武术厅的木踢脚线配以绿色墙裙与一楼演武厅相呼应,同时将窗户抬高,引入天窗概念,背面以落地玻璃砖及平开大窗户,让空间无比明亮通透。

公共教育厅

阅鉴室入口

阅鉴室通道

阅鉴室全景

一层平面布置图

二层平面布置图

天台百草园平面布置图

完整项目信息
项目名称:黄飞鸿医武国术文化研究院
项目地点:广州
设计单位:良风设计事务所
设计团队:何帼英、钟国春、刘凯航、简沅雯、傅启晋、黄洋
项目业主:何师傅
建成状态:在建
设计时间:2019年9月-2020年4月
用地面积:300平方米
建筑面积:800平方米
-END-
*以上文章部分图片源自网络,如涉及侵权,请及时后台留言或邮件联系我们,我们将第一时间采取相关措施。独家发布,未经授权,严禁转载。